159-5447-9555

返回上级 当前位置当前位置: 网站首页   -   鸡蛋保护挡板
咨询电话:159-5447-9555
鸡蛋保护挡板
鸡蛋保护挡板

鸡蛋保护挡板

技术成熟:多年行业经验沉淀,铸就了成熟的技术、优良的信誉与口碑

匠心制造: 精细的工艺技术,流畅的生产加工配置,日久见品质。


在线咨询 咨询服务热线:159-5447-9555

制定专属设计方案

一对一售后服务

就近考察生产现场

60秒人工响应

30分钟给予技术答复

24小时免费定制方案

信息详情

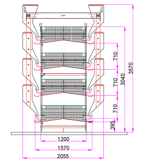
笼体框架采用275克首钢镀锌板制作,网片采用Q235材质黑丝焊接后整体热镀锌,使用全自动电焊机,焊接点特别牢固。设备采用镀锌铁丝制作,镀锌细腻,经久耐用,且具有极强的扛腐蚀功能。组装方便,可根据场地做调整,可加装自动饮水,自动填料,自动清粪,实现养殖自动化。特殊规格,可来样定做,也可按要求定做。底网7-8°,安装在张紧钢丝上弹性大,包护鸡蛋下落及滚动。隔网和底网加密,能有效防止啄羽啄肛和产蛋鸡疲劳综合症。独特大门加固设计,龙门空间增大,方便对鸡的各种操作。

1


鸡笼层数层高(mm)笼高(mm) 至行车顶高(mm)立柱间距(mm)料槽间距(mm)行车间距(mm)
371023302860120015702055
430403570
537504280
3351705700
4465807110
    总计0页 [ ]上一页 下一页

相关产品

  • 咨询热线
    159-5447-9555
  • 微信沟通

    2weima

  • 在线咨询
    159-5447-9555
  • 返回顶部